Sognegård – Himmelev
Sognegård – Himmelev
- Rolle: Ingeniør- & arkitektrådgiver
- Omfang: 110 m2
- Bygherre: Himmelev Menighedsråd
- Periode: 2024
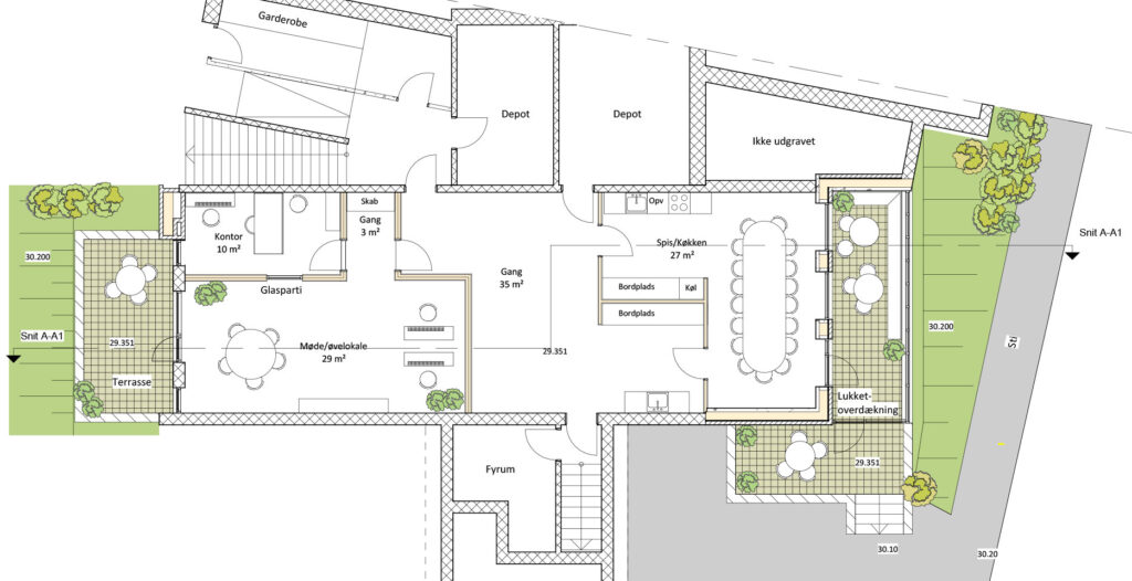
Fra kælder til kontor
Da Himmelev Sognegård kun anvendte kælderen til få aktiviteter, tekøkken og plads til blomsterdekorationer, ønskede man at udvide anvendelsen. Kælderens samlede areal er 109,2 m² og bestod af ét stort rum. Rummet opdeles i tre sektioner:
For at forbedre dagslysforholdene og mindske kælderfornemmelsen tilfører vi udsyn, og derved sikres flugtveje også via de to terrasser.
- Kontor/øvelokale til kirkens musikere.
- Køkken til kirkens medarbejdere.
- En gang med plads til flere aktiviteter – bl.a. et eksisterende blomsterdekorationsområde.
For at forbedre dagslysforholdene og mindske kælderfornemmelsen tilfører vi udsyn, og derved sikres flugtveje også via de to terrasser.
Kontrol af lyd og vand
Disse bliver etableret ved terrænregulering i begge ender af kælderen. De to kældervægge ombygges til gavlfacader med større vindues-/terrassedørspartier, og der etableres et køkken-/spiseområde og et kontor-/øvelokale. Ved køkkenterrassen etableres der en lukket overdækning.
Lokalerne anvendes også som øvelokaler til sognets organister, så kravet var at gøre både øvelokale og kontor lydtætte, samtidig med at akustikken er optimal.
I forbindelse med etableringen af terrasserne er der etableret støttemure rundt om disse samt trapper for at sikre adgang til det øvrige terræn. Et par af de eksisterende regnvandsledninger er blevet omlagt, og regnvandssikring er blevet etableret i forbindelse med eksisterende faskiner.